CG2-600-II割圓機是經用戶需要在CG2-600基礎上配以雙把割炬,經多方面改進研制的一種專用機型,切割法蘭內外圓可一次完成,有效提高了切割效率。本機采用兩檔變速,調速系統采用可控硅觸角調速,調節精確。割炬總路設有總閥,切割同厚度的鋼板只需調整火焰一次,以后無需再調整。本裝置配有氣體旋轉分配器,膠管不纏繞。本裝置,是切割同心圓零件的良好選擇。有效減少了勞動時間,降低了工人的勞動強度,一定程度地提高了工作效率。切割圓直徑 外徑 Ø200~Ø600,內徑 Ø100~Ø500

|
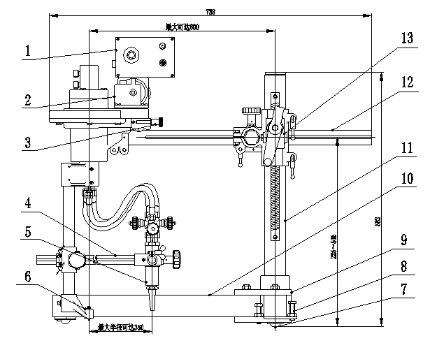
1. 控制箱 |
9.底腳方鋼 |
|
2. 變速箱 |
10. 底座 |
|
3. 離合手柄 |
11.立柱 |
|
4. 半徑桿 |
12.升降座 |
|
5. 割炬(II型有兩把) |
13.橫移大齒條 |
|
6. 割圓中心座 |
14.II型底座 |
|
7. 底座滾輪 |
15.配重塊 |
|
8. 底座螺絲 |
16.II型氣體分配器 |
技術規格
|
|
CG2-600 |
CG2-600-II |
CG2-1000 |
|
|
1.外形尺寸 |
750×300×700(mm) |
1200×340×700(mm) |
1200×340×700(mm) |
|
|
2.切割 范圍 |
切割圓直徑 |
Ø30~Ø600mm |
內圓:Ø100~Ø500 外圓:Ø200~Ø600 |
Ø30mm~Ø1000mm |
|
切割厚度 |
6~100mm |
6~60mm |
|
|
|
切割速度 |
0.2~6.0 r.p.m |
|||
|
切割精度 |
<1mm/1轉,被切割圓的圓度偏差每轉小于1mm,切割表面粗糙度達 |
|||
|
3.電動機 |
型號 |
ZTY-261 直流稀土永磁電機 |
||
|
轉速 |
3600 r/p/m |
|||
|
功率 |
30W |
|||
|
電壓 |
110V |
|||
|
4.控制箱 |
電源電壓 |
AC 220V±10% 50HZ |
||
|
保險絲 |
1A |
|||
l CG2-600-II雙割炬割圓機裝箱清單:
|
1.主機 |
1臺 |
|
2.割嘴 |
3只 |
|
3.氧、乙炔進氣接頭 |
1套 |
|
4.電源線 |
1根 |
|
5.保險絲 |
2個 |
|
6.通針 |
1套 |
|
7.說明書,合格證 |
各1份 |